Používáme cookies k optimalizaci našich webových stránek a našich služeb. Další informace o cookies najdete zde.

Nastavení


Prodej bytu 2+1 Jílová 15, Olomouc

Prodej bytu 2+1 Jílová 15, Olomouc

Popis nemovitosti

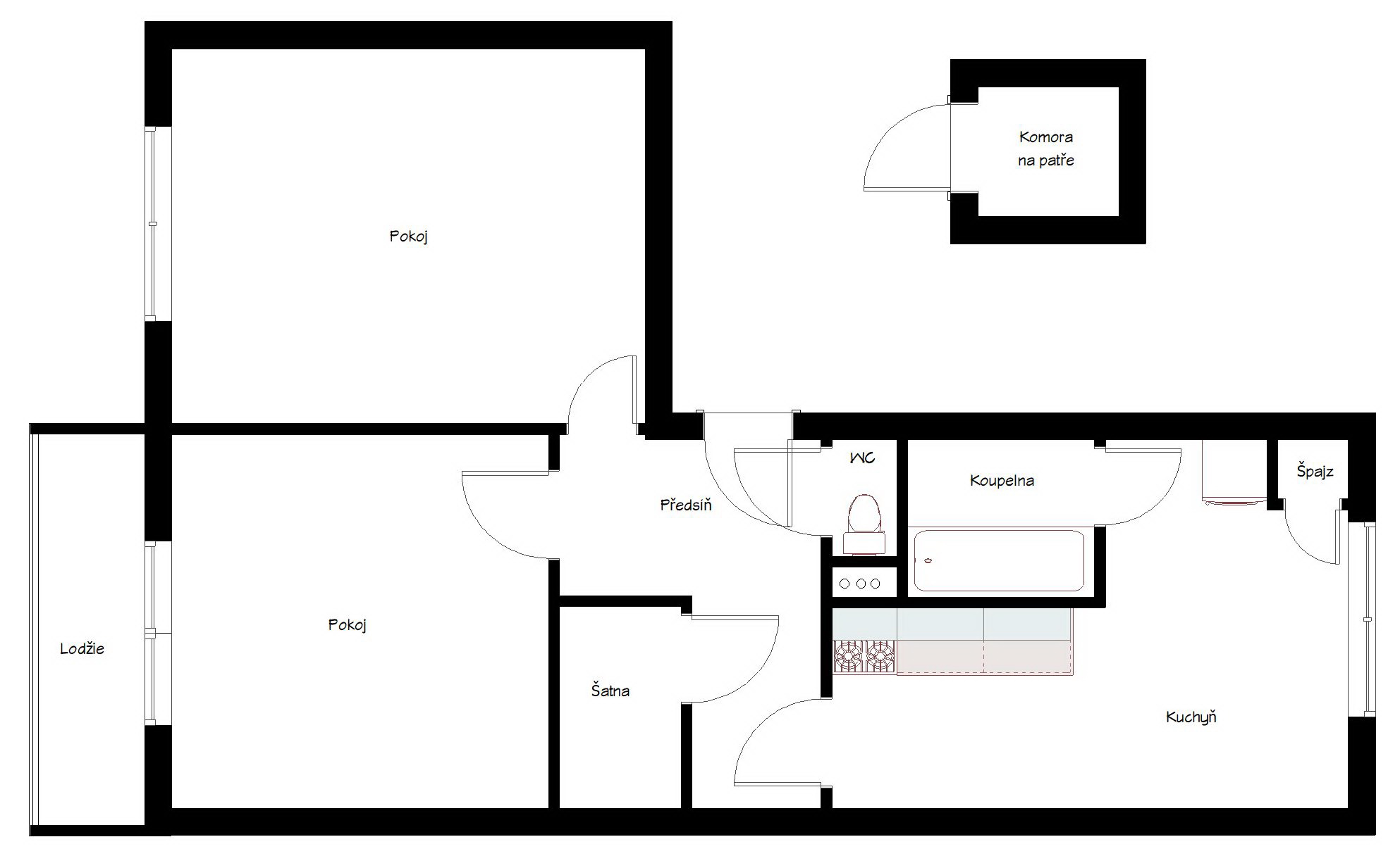
Nabízíme k prodeji panelový byt 2+1 s lodžií a komorou v mezipatře, nacházející se ve 6. patře z celkových sedmi, na ulici Jílová v Olomouci, v části obce Nová Ulice.

Byt o ploše 54,8m² je v osobním vlastnictví a v původním stavu, včetně umakartového jádra, můžete jej tedy rekonstruovat podle vlastních představ a vkusu. Pokoje jsou neprůchozí a vybavené parketovými podlahami. V předsíni je k dispozici šatna a v podhledu další úložné prostory. Z lodžie je krásný ničím nerušený výhled.

Budova je klasifikovaná energetickou třídou B, tedy náklady na provoz budete mít nízké.

V této lokalitě se nachází veškerá občanská vybavenost. V těsné blízkosti je mateřská školka, Základní umělecká škola a Základní škola Stupkova, která se je zhruba jen 400 metrů od bytu. Dále jsou zde dostupné supermarkety, lékaři a další potřebné služby.

V případě zájmu o prohlídku, nebo bližší informace mne neváhejte kontaktovat.

Videoprohlídka

Jitka Greš

Certifikovaná realitní makléřka s působištěm v Olomouci, Prostějově a okolí.

Více než 9 let praxe v oboru, v síti RE/MAX již od roku 2016.

Jsem velmi empatický člověk a zajímám se o Vaši konkrétní situaci a snažím se najít to nejlepší řešení. Při vyjednávání stojím vždy na Vaší straně. Informuji Vás o každém kroku, jsem Váš partner a naslouchám. Rozumím tomu, že během prodeje se může leccos změnit, proto jsem flexibilní.

Hlavní je dosáhnout vysněného cíle.

Realitní obor je velmi dynamický a neustále se mění a vyvíjí. Je nutné mít přehled a vědět jaké zákonné povinnosti se Vás týkají při prodeji nebo pronájmu nemovitosti. Se mnou můžete být bez starostí. 

Věřím, že kvalitní komunikace a důvěra jsou základem úspěšného obchodního vztahu. Proto se snažím být svým klientům oporou v každém kroku procesu. Mám bohaté zkušenosti, které mi umožňují efektivně vyjednávat a dosahovat nejlepších výsledků. 

Pokud hledáte někoho, kdo se postará o Vaše realitní potřeby s vášní a profesionalitou, jste na správné cestě. Těším se na možnost spolupráce a na to, že vám pomohu splnit vaše sny o bydlení.


Jitka Greš

Kontaktní formulář

Stáhnout PDF